Maison vieille
42 Chemin du Gachet
07380 La Souche
Telefon : 04 75 64 70 70
- Winterunterkünfte
- 2 Maiskolben
Dans un petit hameau, à 300m du village, en bord de rivière, gîte de bon confort à côté de la maison du propriétaire (accès et terrasse indépendant).
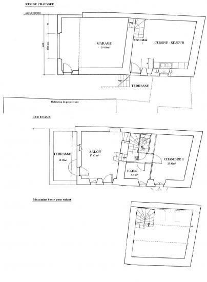
Salle à manger, cuisine équipée, salon avec canapé, fauteuil, TV écran plat, 1ch(1 lit 2 pers), 1ch enfant mansardée basse (2 lits 1 pers), s.d'eau, wc, ch.électr, petite terrasse plein sud 10m², cour, garage, terrain commun ombragé par le verger. Baignade et pêche sur place (petit plan d'eau du village aménagé au bout de la propriété). Station thermale, casino, cinéma à Vals les Bains, 15km. Réduction 10% sur séjour 3 semaines.
Période d'ouverture
Vom 09/03/2024 bis 10/01/2025, täglich.Ausstattung / Interessen
prestations_equipements
Gartentisch und-stühle, Terrasse, Grill, Parkplatz, Garage, Garten, Privatgarageprestations_services
Haustiere akzeptiert, Reinigung gegen Aufpreis, Geschäfteprestations_activites
Baignade (DE), Angeln, Fußwanderung, Tennis, Wassersport, Ballsportarten, Sport zu Fußprestations_conforts
Babyausrüstung, Gefrierschrank, Gemeinsame Waschmaschine, Private Waschmaschine, Geschirrspüler, Fernsehen, Mikrowelle, BabybetthebergementLocatif_typeLabel
Gîtes de FrancehebergementLocatif_capacites
Wochenende (möbliert): 175 €
Mid-week (möbliert): 245 €
Eine Woche: 350 €.
Vom 09/03/2024 bis 10/01/2025
Wochenende (möbliert): von 160 bis 264 €
Mid-week (möbliert): von 224 bis 352 €
Eine Woche: von 320 bis 520 €.
descriptionTarif_periodes
06/Jan/2024 09/Feb/202409/Mar/2024 10/Jan/2025
descriptionTarif_modesPaiement
Kreditkarte, Scheck, Chèque Vacances (Ferienscheck), Bar, Geschenkgutschein Gîtes de FrancedescriptionTarif_gratuit
NodescriptionTarif_complement
Taxe de séjour : OuiCharges en supplément selon les périodes.
nahe
Source des données

Données mises à jour le 21/Mar/2024 00:30:24