Le Clédiou
2155 route du Tanarg
Les Azagades
07380 La Souche
Téléphone : 04 75 64 70 70
- Gîtes de neige
- 2 épis
Dans la vallée au pied du Tanargue (gds plateaux, ski,lac), 3 gîtes sans vis à vis aménagés dans une ancienne ferme restaurée proches de notre habitation.
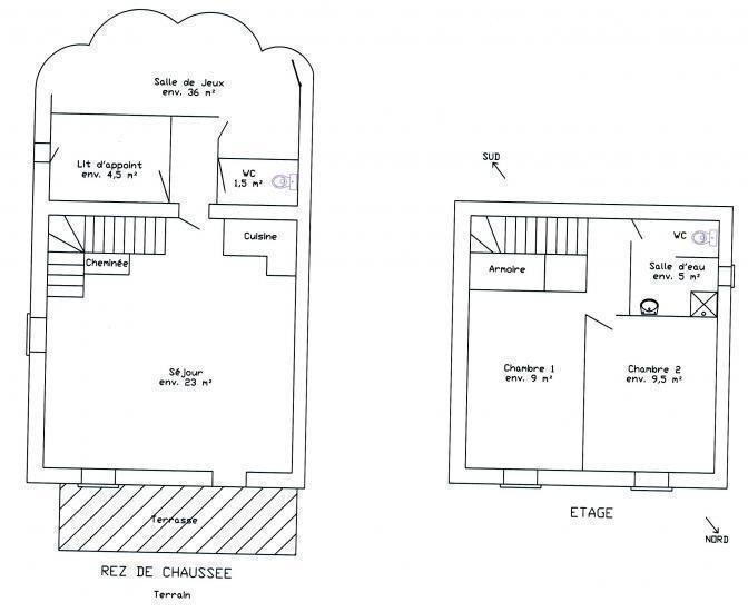
2è gîte : séjour/c.cuisine, cheminée, ch1(1 lit 2pl), ch2(2 lits 90), s.d'eau, wc, ch.électr., terrasse attenante. Terrain, salle de jeux communs aux 3 gîtes. En bordure de la route touristique du Tanargue D19. Station de ski de la Croix de Bauzon à 13 km (VTT, escalade, randonnée, ski de piste et de fond l'hiver), piscine couverte avec jaccuzzi aux Thermes de Neyrac les Bains, 12km. Grand parking, garage vélos. Forfait cure 3 semaines : 600€ hors juillet/août.
Période d'ouverture
Equipements / Loisirs
prestations_equipements
Abris pour vélo ou VTT, Salon de jardin, Terrasse, Barbecue, Parkingprestations_services
Location de draps, Ménage avec supplément, Commercesprestations_activites
Baignade, Pêche, Randonnée pédestre / balade à pied, Tennis, Sports d'eau, Sports de balle, Sports pédestresprestations_conforts
Matériel Bébé, Accès Internet privatif Wifi, Cheminée / Poêle, Accès Internet privatif Wifi gratuit, Congélateur, Lave linge privatif, Lave vaisselle, Télévision, Micro-ondes, Lit bébéhebergementLocatif_typeLabel
Gîtes de FrancehebergementLocatif_capacites
Mid-week : de 210 à 332 €
Semaine : de 300 à 475 €.
Taxe de séjour : Oui
Charges en supplément selon les périodes.
descriptionTarif_periodes
06/Jan/2024 10/Jan/2025descriptionTarif_modesPaiement
Carte bancaire/crédit, Chèque, Chèque-Vacances Classic, Espèces, Chèque cadeau Gîtes de FrancedescriptionTarif_gratuit
NodescriptionTarif_complement
Taxe de séjour : OuiCharges en supplément selon les périodes.
A proximité
Source des données

Données mises à jour le 21/Mar/2024 00:29:55